Overslaan naar inhoud

Een Nieuw Thuis In Heiloo


Heiloo


LIFESTYLE

Meneer en Mevrouw gaan verhuizen van Amstelveen naar Heiloo. Ze hebben hier een huis gekocht op een mooie locatie met een prachtige tuin. Aan het huis zelf moet nog wel wat gebeuren. Hierbij hebben ze ons ingeschakeld om te zorgen dat het allemaal een mooi geheel wordt.


RUIMTE

Ik mocht een Design Plan 2D voor ze maken. Het uitgangspunt hiervoor was een mooie visgraat PVC vloer die we samen al hadden uitgekozen en hun huidige meubels met onder andere een antieke buffetkast.


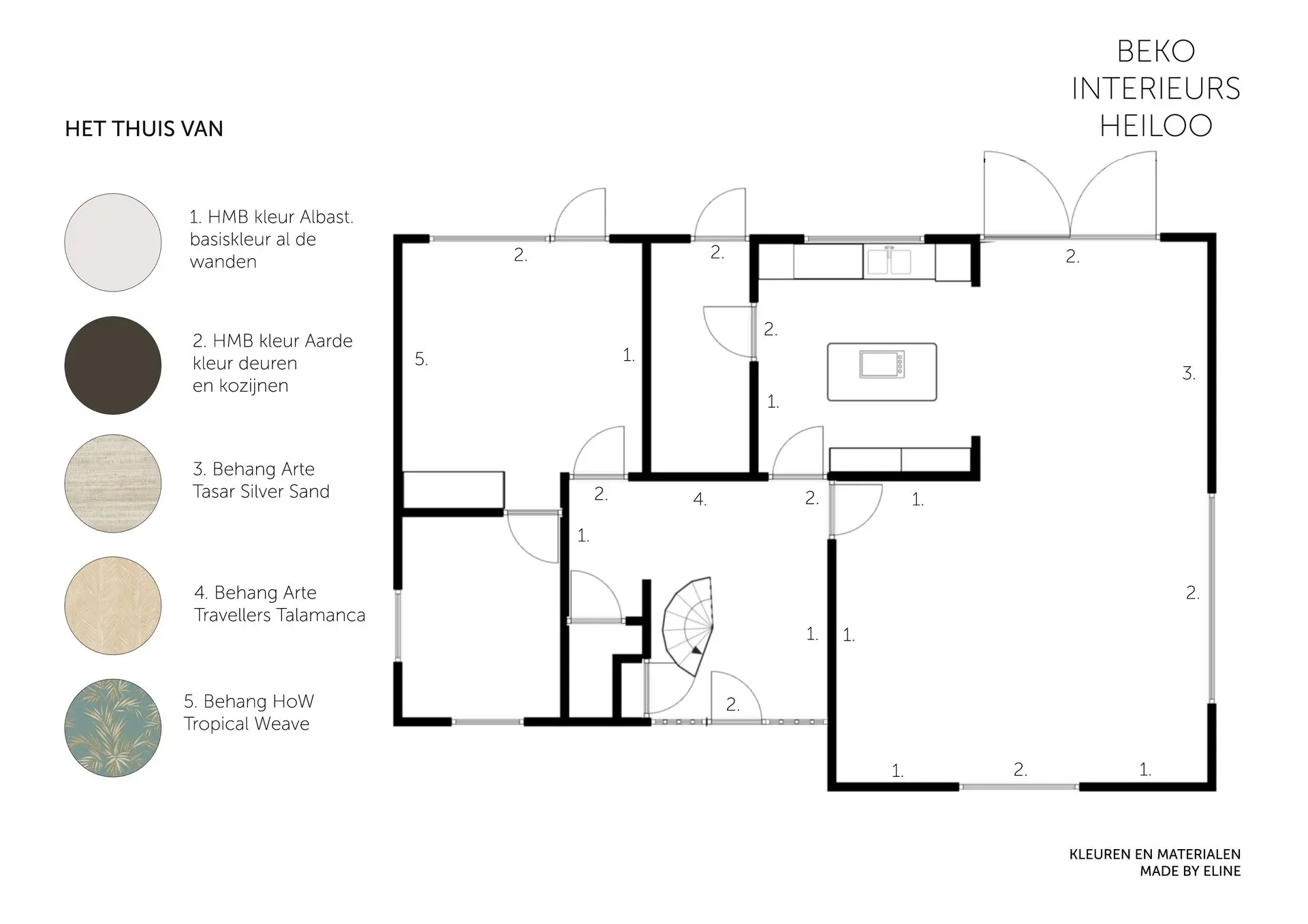
DESIGN DETAILS

De stijl van Meneer en Mevrouw is modern met klassiek gecombineerd, en het mag wel wat luxe uitstralen. 


ONTWERPVISIE

Accenten heb ik toegevoegd door middel van behang. In de woonkamer de HMB 5014 in de kleur tent. Een rustig behang met chique uitstraling.

In de hal, als blikvanger bij binnenkomst, heb ik gekozen voor de Talamanca van Arte. Een behang met verenpatroon en goud-accenten. De antieke sidetabel ervoor, die ze graag mee wilde nemen uit hun vorige huis, met een mooie vaas erop en je hebt een prachtige entree.

In de slaapkamer, achter hun bed, het behang uit de Tropical Weave van Hooked on Walls. Deze heeft een mooie blauwe tint, met wederom bladeren in goudaccenten erop voor de chique uitstraling.


Qua raamdecoratie ben ik in de woonkamer voor vouwgordijnen gegaan voor het voor-, en zijraam in een lichtdoorlatende stof voor de privacy.

Hierbij de Sunny van Vadain als overgordijn. Een hele mooie soepele, kamerhoge stof in een gouden kleur. Geconfectioneerd in een wave plooi.

Deze komen te hangen aan een ronde Interstil roederails in de kleur nikkel mat.


Verder heb ik ook meegedacht met de indeling van de woonkamer en hier wat verschillende opties voor aangedragen.


Om van de zithoek een mooi geheel te maken heb ik een karpet voorgesteld. Een hoogpolige in een off white kleur. Dit staat mooi bij hun huidige banken, en op de visgraat vloer.



Plan jouw Design Date®

Onze kennismaking


Advies & ontwerp

Samen plannen maken


Coördinatie & realisatie

De uitvoer


Geniet van jouw thuis

De oplevering